
PAISAJISMO MARINA GARDEN 2 CAP CANA
Año: 2026
Situación: Barcelona, España
Superficie: 250 m2
Cliente: Privado
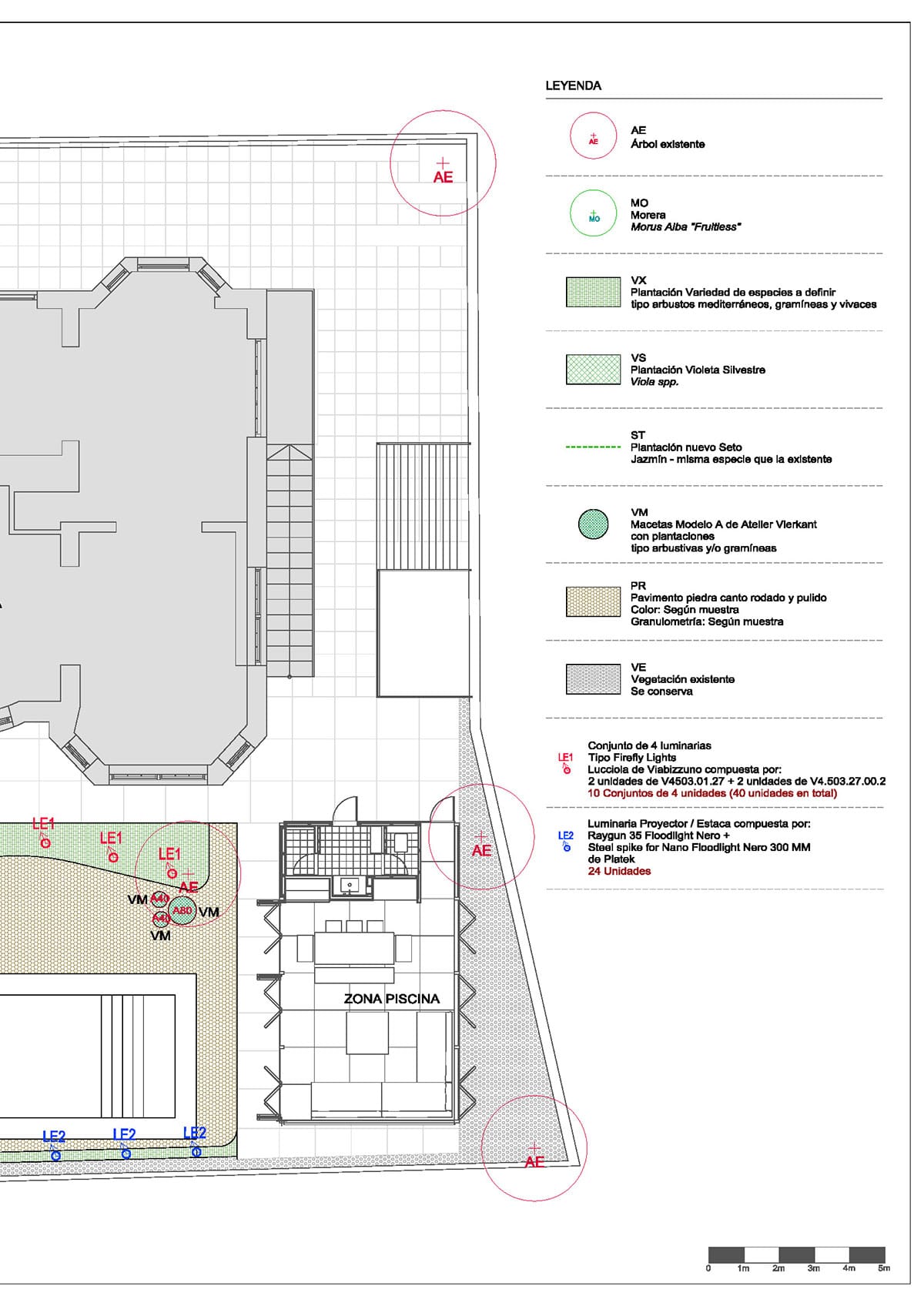
La propuesta pretende cambiar esta estética por una que aporte color y textura y transforme un espacio rígido en un jardín vivo, contemporáneo y sostenible introduciendo una estacionalidad real, texturas, ligereza y movimiento con mayor resistencia, menor consumo hídrico y mayor compatibilidad climática de bajo consumo, resiliencia y crecimiento a largo plazo.
Para la vegetación se propone una estética nebulosa y espontánea con movimiento en conjunto con especies adaptadas a nuestro clima.
Para este efecto se plantea una paleta naturalista compuesta por gramíneas mediterráneas, vivaces resistentes, aromáticas estructurales, arbustos y bloques florales para aportar color de estilo “New Perennial”.








